上人屋面、平台-安全区域·设计地面的定性及要求!
发布时间:2025-11-19
建筑的较高部分通过较低部分的上人屋面或平台疏散时,依据疏散救援条件,上人屋面和平台可能作为室内安全区域、室外安全区域或室外设计地面,也可作为临时避难场所,分述如下:
一、作为室内安全区域:
作为室内安全区域的上人屋面或平台,可作为楼层的安全疏散出口,其功能与通向疏散楼梯间的安全出口类似。
作为室内安全区域的上人屋面或平台,功能上类似于避难走道,属于平面疏散通道的扩展,需满足一定条件:
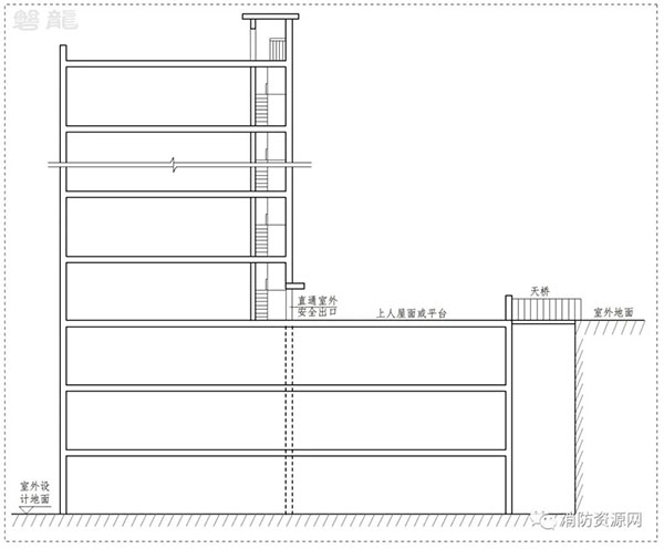
1、具有到达室外地面的设施,常见的方式是通过同一建筑内其他防火分区的疏散楼梯直达地面。(图示1、图示2)

(图示1)

(图示2)
注:对于设置在建筑外墙上的室外疏散楼梯,虽然处于室外区域,但受制于建筑结构及外墙的耐火极限影响,安全等级上仍属于室内安全区域。
2、符合安全疏散要求,包括但不限于以下条件:
2.1 满足相应耐火等级建筑上人屋面的耐火极限要求,且不应小于1.5h。
2.2 仅作为人员疏散和交通使用,不得用作其他影响疏散和安全性能的功能,不得放置可燃物和影响人员疏散的设施。
2.3 设置消防应急照明和疏散指示标志系统,指示清晰明确的疏散路径。
二、作为室外安全区域:
《建规》2.1.14有关于室外安全区域的定义:“室外安全区域”包括符合疏散要求并具有直接到达地面设施的上人屋面、平台。综合本定义及《建规》6.6.4有关天桥、连廊等的规定,满足一定条件的上人屋面和平台,可作为室外安全区域:
1、具有直接到达室外地面的设施,常见的方式有:
1.1 上人屋面或平台与地面直接连通,或通过天桥直达地面(图示3):

(图示3)
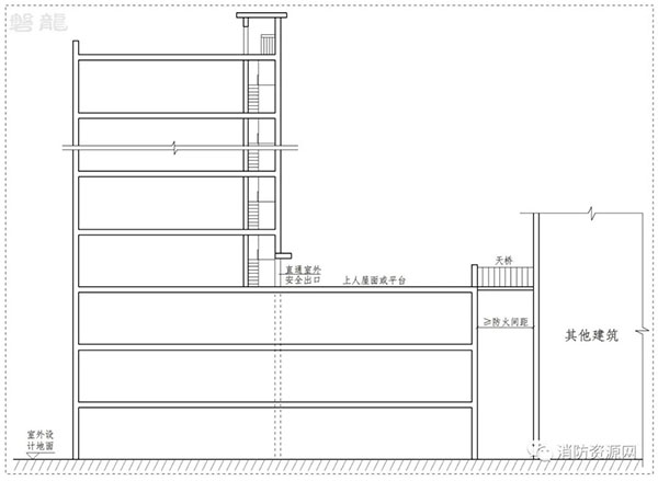
1.2 上人屋面或平台通过满足规范要求的天桥、连廊直达其他建筑(图示4):

(图示4)
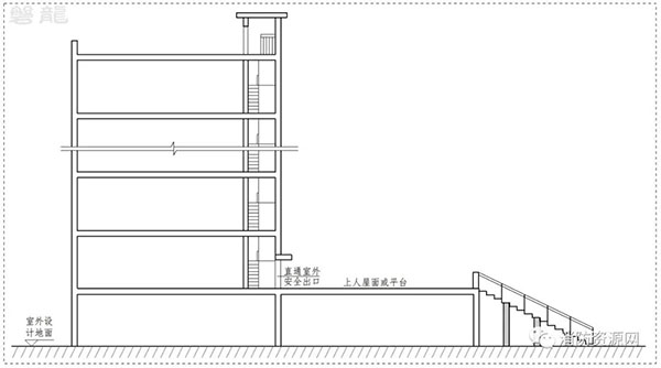
1.3 上人屋面或平台通过满足疏散要求的阶梯等直达地面,阶梯不受建筑外墙的燃烧性能和耐火极限以及建筑门窗洞口影响。(图示5)

(图示5)
2、符合安全疏散要求,包括但不限于以下条件:
2.1 满足相应耐火等级建筑上人屋面的耐火极限要求,且不应小于1.5h。
2.2 仅作为人员疏散和交通使用,不得用作其他影响疏散和安全性能的功能,不得放置可燃物和影响人员疏散的设施。
2.3 设置消防应急照明和疏散指示标志系统,指示清晰明确的疏散路径。等等。
三、作为室外设计地面:
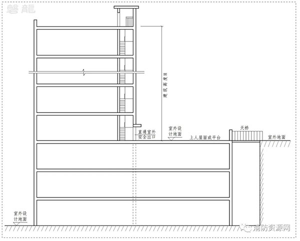
满足消防救援要求的上人屋面和平台,可作为确定建筑高度的室外设计地面,除满足前述室外安全区域的条件外,对于多层建筑,屋面或平台应满足消防救援要求,对于高层建筑,尚应满足消防车道及消防车登高操作场地的相关要求,主要如下:
1、满足消防车道、消防救援场地的设置要求。
2、屋面及抵达屋面设施(天桥等)的承载力满足要求。
3、屋面及抵达屋面设施(天桥等)的耐火极限满足要求,耐火极限不应小于2.0h,且不应小于各消防系统的火灾延续时间。
4、应设置各系统的水泵接合器,并满足建筑物室外消火栓保护要求,等等。(图示6)

(图示6)
四、作为临时避难场所:
很明显,敞开的上人屋面和平台,相对避难层(间)具备更好的避难条件,可作为临时避难场所,上人屋面和平台不需设置防烟系统、自动灭火系统、报警系统等消防设施,其他条件与避难层(间)类似,比如避难区面积的计算、消防应急照明和疏散指示标志系统的设置,等等,均可参照避难层(间)的要求执行。
文章来源:消防资源网 如有版权问题请联系删除






